Eladó lakás Budapest XIII. ker, Újlipótváros, 295 000 000 Ft

Leírás

Különleges nagypolgári lakás egész emeletnyi térrel Újlipótvárosban!

Az ingatlan egy 1926-ban épült, Bauhaus stílusú, liftes társasház első emeletén helyezkedik el, amely mindössze 9 lakásos. Az épület két évvel ezelőtt teljes körű felújításon esett át, amely során nemcsak a külső szigetelés valósult meg, hanem megújult a lépcsőház és a belső homlokzat is. A ház gondozott, parkosított belső udvara igazi nyugalmat kínál a lakók számára.


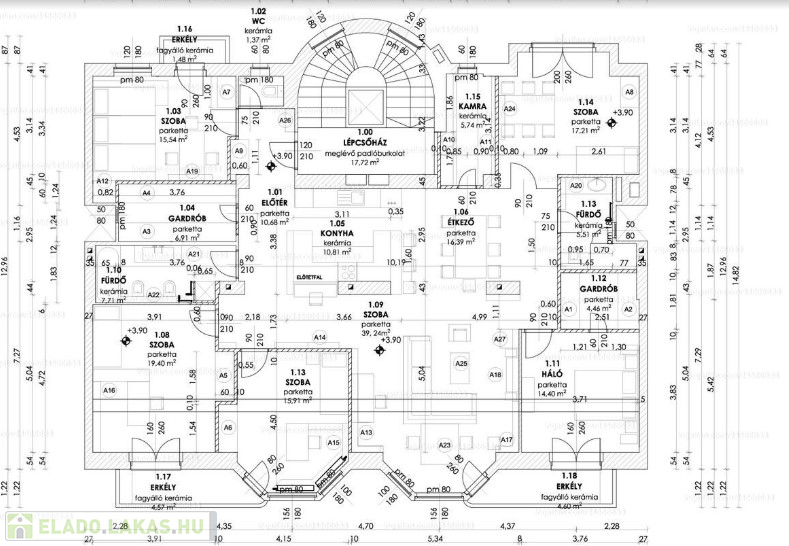
Ez a közel 200 nm-es lakás a stílus és a funkcionalitás tökéletes egyensúlyát kínálja. Tíz éve teljes körűen felújították: korszerű nyílászárók, klímaberendezések minden szobában, valamint távfelügyeleti riasztórendszer is beépítésre került.

Az átgondolt elrendezés részeként kialakításra került:

5 hálószoba beépített szekrényekkel

2 fürdőszoba

külön vendég WC

tágas, amerikai konyhás nappali és étkező

2 gardrób

1 kamra

3 erkély, összesen 12 nm

1 db zárható, 4 nm-es alagsori tároló

A keleti és nyugati tájolásnak köszönhetően a lakás egész nap világos. Két szoba a csendes, zöld belső udvarra néz, a többi pedig utcai kilátással rendelkezik.

Az ingatlan egy helyrajzi számon szerepel, de két bejárattal rendelkezik, így könnyedén két lakássá is átalakítható. Rendelőnek, irodának is kiváló választás.

Tehermentes, jogilag rendezett, rövid időn belül birtokba vehető.


A XIII. kerület egyik legkedveltebb részén, Újlipótvárosban található, a sétálóövezeti Hollán Ernő utcában.
Mindössze pár perc sétára a Jászai Mari tértől, a Duna-parttól, a Pozsonyi úttól. A környéken kiváló a közlekedés: a 4-6-os és 2-es villamos, az M3-as metró, valamint a Nyugati pályaudvar mind könnyen elérhető. Éttermek, kávézók, üzletek, kulturális helyszínek sokasága biztosítja a kényelmes városi életet.

A lakás előre egyeztetett időpontban rugalmasan megtekinthető.

Lakás részletei

Ár: 295 000 000 Ft
Méret: 198 négyzetméter
Azonosító: 11522006
Városrész: Újlipótváros
Emelet: 1. emelet
Építőanyag: Tégla
Fűtés jellege: Cirkó
Ingatlan állapota: Felújított
Komfort fokozat: Dupla komfort
Elhelyezkedés: Társasház
Bútorozott: Bútorozott
Kilátás: udvari
Egész szobák: 6
Fél szobák: 2

Így keressen eladó lakást négy egyszerű lépésben. Csupán 2 perc, kötelezettségek nélkül!

Szűkítse a eladó lakások
listáját
Válassza ki a megfelelő
eladó lakást
Írjon a hirdetőnek
Várjon a visszahívásra