Eladó lakás Budapest XIII. ker 110 825 000 Ft

Leírás

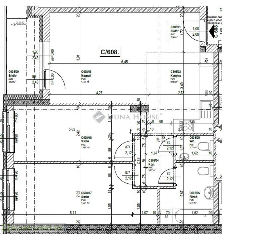
Kiváló lokáció, közkedvelt lakópark, modern, fiatalos lakások!Budapesten, a XIII. kerület Angyalföld városrészén, egy 2021-ben épült, modern, liftes lakóparkban eladó egy 69 nm-es, 6. emeleti lakás 5 nm-es erkéllyel.A lakás amerikai konyhás nappalival, étkezővel és 2 hálószobával rendelkezik.A környék kiváló tömegközlekedési lehetőségekkel rendelkezik!A 14-es villamos, helyi autóbusz járatok, illetve akár az M3 metró megállója is csupán perc sétára található, így a belváros is könnyen megközelíthető.A lakáshoz teremgarázsban parkolóhely vásárolható vagy bérelhető.Találja meg nálunk leendő otthonát, aktuális befektetését!

Referencia szám: LK037403

Lakás részletei

Ár: 110 825 000 Ft
Méret: 72 négyzetméter
Azonosító: 11597456
Irodai azonosító: LK037403-5140529
Cím: 72 nm-es lakás eladó Budapest 13. ker.
Emelet: 6. emelet
Építőanyag: Tégla
Fűtés jellege: Központi (egyedi mérővel)
Ingatlan állapota: Kitűnő
Építési év: 1-5 éves
Egész szobák: 3

Egyéb jellemzők

  • Erkély
  • Lift

Térkép


Így keressen eladó lakást négy egyszerű lépésben. Csupán 2 perc, kötelezettségek nélkül!

Szűkítse a eladó lakások
listáját
Válassza ki a megfelelő
eladó lakást
Írjon a hirdetőnek
Várjon a visszahívásra