Eladó lakás Budapest XII. ker 95 000 000 Ft

Leírás

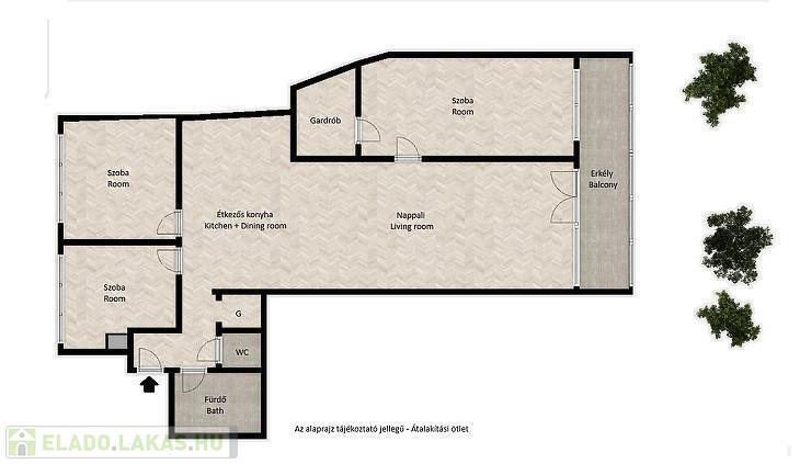
Krisztinavárosban, karbantartott, liftes társasházban, emeleti, erkélyes, napos lakás eladó.

Az ingatlan az épület III. emeletén található, utcára és csendes hátsó kertre tekint dny-i és ék-i irányba.

Központi helysége egy 12 nm-es hall.

Innen közelíthetjük meg a 24 nm-es, erkélykapcsolattal is rendelkező, hátsó kertre néző nappalit, egy gardróbbal rendelkező hálószobát és egy szó másik hálót is.

A dk-i fekvésű, kertre néző, 6 nm-es erkélyt a tulajdonos beépítette és hő és hangszigetelt üveggel szerelte fel.

Az előszobából közelíthetjük meg az ablakos konyhát, a káddal szerelt fürdőszobát, a külön wc-t és a kamrát is Az lakás igény szerint könnyen nappali és három hálószobássá alakítható!

Lokáció: 5 percen belül elérhető a Városmajor és a Vérmező park is. 5-8 percen belül pedig a Széll Kálmán tér és a Déli pályaudvar.

Az ingatlan tehermentes és gyorsan birtokba vehető!

Jöjjön el és tekintse meg mielőbb!

Lakás részletei

Ár: 95 000 000 Ft
Méret: 78 négyzetméter
Azonosító: 11579890
Irodai azonosító: 23875
Emelet: 3. emelet
Építőanyag: Kérdezzen rá a hirdetőtől »
Fűtés jellege: Házközponti
Ingatlan állapota: Átlagos
Egész szobák: 3

Így keressen eladó lakást négy egyszerű lépésben. Csupán 2 perc, kötelezettségek nélkül!

Szűkítse a eladó lakások
listáját
Válassza ki a megfelelő
eladó lakást
Írjon a hirdetőnek
Várjon a visszahívásra