Eladó lakás Budapest XII. ker 88 000 000 Ft

Leírás

Kizárólag Irodánk kínálatában!



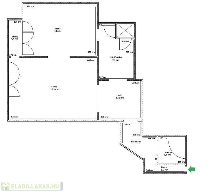
Eladó Németvölgyben, a Csörsz utcában egy 77 nm-es, erkélyes, panorámás, 2 szoba + hallos, felújítandó lakás, egy liftes, jó állapotú (lépcsőház frissen festett) társasház 4. emeletén.



Keleti tájolásának köszönhetően nagyon világos.

Az erkélye 4 nm-es, melyről gyönyörű kilátás nyílik a Citadellára, Mátyás-templomra is.

A lakáshoz tartozik tároló is.

Közösköltsége 28.000 Ft, mely az általános költségeken felül magába foglalja a vízfogyasztást is.

Kulcsunk van az ingatlanhoz, így a megtekintéseket rugalmasan tudjuk eszközölni.



Elhelyezkedése kiváló, közelben oktatási központok, boltok, üzletek, rendelők, parkok megtalálhatóak. Tömegközlekedés szempontjából 5 perc sétatávolságra villamosok, busz- és metrómegállók elérhetőek.



Kérdés esetén keressenek minket bizalommal!

Irodánk ingyenes hiteltanácsadással áll ügyfeleink rendelkezésére.

Vevőink részére a közvetítés díjmentes. A hirdetésben szereplő adatok tájékoztató jellegűek.

Lakás részletei

Ár: 88 000 000 Ft
Méret: 77 négyzetméter
Azonosító: 11562099
Irodai azonosító: 23013
Emelet: 4. emelet
Építőanyag: Kérdezzen rá a hirdetőtől »
Fűtés jellege: Konvektoros
Ingatlan állapota: Átlagos
Egész szobák: 2

Így keressen eladó lakást négy egyszerű lépésben. Csupán 2 perc, kötelezettségek nélkül!

Szűkítse a eladó lakások
listáját
Válassza ki a megfelelő
eladó lakást
Írjon a hirdetőnek
Várjon a visszahívásra