Eladó lakás Budapest XII. ker, Farkasvölgy, 279 000 000 Ft

Leírás

MÁR CSAK 1 LAKÁS ELADÓ!

XI. Sasad felső részén, csendes mellékutcában, de már egészen közel a XII. ker.-hez, LIFTES
házban, ÚJÉPÍTÉSŰ FÖLDSZINTI, KERTKAPCSOLATOS lakás, saját kizárólagos 140 nm-es kerttel eladó!

Legmodernebb, építőiparban használt technológia alkalmazása a nyugodt, környezetkímélő jövőért! Panasonic levegő-hőszivattyús plafon hűtés-fűtés rendszer, napkollektor, SMART HOME megoldások!
A 3 rétegű üvegezés és 18 cm hőszigetelés biztosítja a magas szintű energiahatékonyságot, energia besorolása közel nulla. A lakásokhoz többek között elektromos redőnyök, biztonsági kamera rendszer, interneten vezérelhető hőmérséklet szabályozás és videó kaputelefon tartozik, a kert parkosított és öntöző rendszerrel kiépített.


Az elmúlt húsz év alatt 24 társasház valósult meg, amelyeket referenciaként is be tudunk mutatni.
Megbízható szakmai és biztonságos jogi háttérrel rendelkező, saját neve alatt építő magyar tulajdonú cég, amely a legmodernebb technológiákat és anyagokat alkalmazva az elérhető legmagasabb, prémium minőségben kivitelezi minden projektjét.

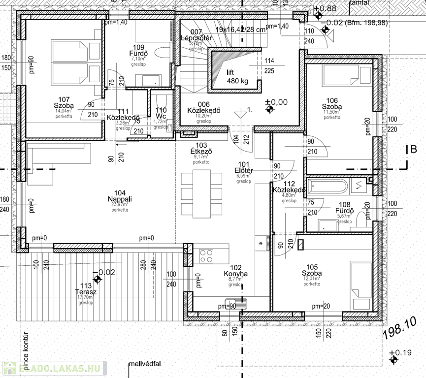
A meghirdetett FÖLDSZINTI, KERTKAPCSOLATOS lakás Nappali + 3 hálószobával bír, melyhez 2 fürdőszoba is ki lett alakítva, az egyik a szülői hálóhoz közvetlen kapcsolódik, a másik, a 2 távolabb eső szobákhoz. A kényelmet egy külön vendég wc kialakítása is elősegíti. A nappali-konyha kapcsolata a mai modern igényeknek megfelelően amerikai konyhás kialakítású, de remekül úgy lett tervezve, hogy a konyhát akár le is lehet választani a nappalitól, aki a hagyományosabb kialakítást preferálja. A világosságából, a benapozásából, a a zöldekkel beültetett kert látványából mit sem veszít, hisz a terasz közvetlenül kapcsolódik a nappalihoz a konyhához is.

A teremgarázsból közvetlenül, akadálymentesen LIFT-tel közelíthető meg a lakás! Az elektromos töltéssel rendelkező 2 db parkolóhely (+12 M Ft/db), ill. a több mint 10 nm-es tárolóhelyiség (11 M Ft) vásárlása kötelező!

Tervezett átadás: 2026. III. negyedév. A lakás az egyedi szerződésnek köszönhetően illeték mentesen megvásárolható.

Lakás részletei

Ár: 279 000 000 Ft
Méret: 116 négyzetméter
Azonosító: 11433461
Városrész: Farkasvölgy
Emelet: Földszint
Építőanyag: Tégla
Fűtés jellege: Hőszivattyú
Ingatlan állapota: Épülő
Komfort fokozat: Dupla komfort
Építési év: Új építésű
Elhelyezkedés: Társasház
Tulajdonviszony: Saját
Bútorozott: Nem bútorozott
Kilátás: kertre néző
Kert: Saját kert
Egész szobák: 4

Egyéb jellemzők

  • Erkély
  • Klíma
  • Lift
  • Pince
  • Kertkapcsolat
  • Tároló

Így keressen eladó lakást négy egyszerű lépésben. Csupán 2 perc, kötelezettségek nélkül!

Szűkítse a eladó lakások
listáját
Válassza ki a megfelelő
eladó lakást
Írjon a hirdetőnek
Várjon a visszahívásra