Eladó lakás Budapest XI. ker 92 616 000 Ft

Leírás

MODERN ÚJ ÉPÍTÉSŰ OTTHONOK ÚJBUDÁN, KELENFÖLDÖN!

Az Etele Pláza közelében épülő, új építésű, 144 lakásos modern lakópark ideális választás mindazok számára, akik első otthonukat keresik, vagy csak befektetnének.

A projekt lakásai 30 m²-től egészen 125 m²- ig érhetők el, az egyszobás garzonoktól a tágas több szobás otthonokig. A lakásokhoz gépkocsibeálló és tároló is vásárolható opcionálisan.

Gépkocsibeálló: 12.700.000.- Ft

Tároló: 3.000.000.- Ft - tól

Átadás: 2026. IV. negyedév


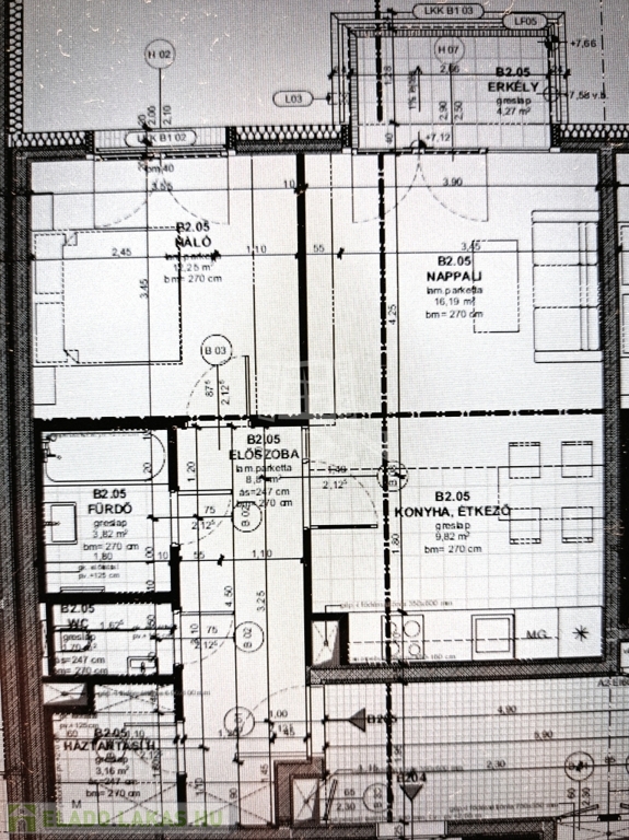
A hirdetésben szereplő lakás 55,75 m²-es, 2 szobás,2. emeleti, és tartozik hozzá egy 4,27 m²-es erkély is.

Több lakás is elérhető! A lakásokhoz gépkocsibeálló és tároló is vásárolható opcionálisan.

50% befizetést követően hitel felvétele is lehetséges!


MODERN ÉS FUNKCIONÁLIS TÉR
• Világos, tágas lakótér vízálló laminált padlóval
• Fürdő–WC stílusos, világosszürke hidegburkolattal
• Fehérre festett, vakolt falak – egyszerűen bútorozható
• Erkély, amely extra pihenő- vagy étkezőhelyet biztosít

❄️ KORSZERŰ KÉNYELEM
• Lakásonként szabályozható központi fűtés és hűtés (split klímával)
• Központi hideg- és melegvíz, egyedi mérőkkel
• Igényes, jól felszerelt vizesblokk, páraelszívóval

⚡️ MODERN MŰSZAKI TARTALOM
• Strukturált informatikai és TV hálózat
• Kaputelefonos beléptető
• Minden helyiségben plafonvilágítás és minimum 4 konnektor
• Életvédelmi relével védett elektromos rendszer

ENERGIAHATÉKONYSÁG ÉS KÉNYELEM
• 20 cm vastag homlokzati hőszigetelés
• Nagy hő- és hangszigetelésű nyílászárók
• Homlokzati zsaluziák és modern árnyékolástechnika

Elhelyezkedés: XI. kerület, Vasút utca – gyors közlekedés, fejlett infrastruktúra, nyugodt környezet.

Ne hagyja ki! Új építésű lakások az egyik legígéretesebb projektben Újbudán.

Lakás részletei

Ár: 92 616 000 Ft
Méret: 56 négyzetméter
Azonosító: 11600206
Irodai azonosító: 392735
Cím: Vasút utca
Emelet: 2. emelet
Építőanyag: Tégla
Fűtés jellege: Házközponti (egyedi mérővel)
Ingatlan állapota: Kitűnő
Komfort fokozat: Összkomfort
Építési év: Újszerű
Tulajdonviszony: Saját
Kilátás: utcai
Egész szobák: 2

Egyéb jellemzők

  • Erkély
  • Garázs
  • Lift
  • Pince
  • Tároló

Térkép


Így keressen eladó lakást négy egyszerű lépésben. Csupán 2 perc, kötelezettségek nélkül!

Szűkítse a eladó lakások
listáját
Válassza ki a megfelelő
eladó lakást
Írjon a hirdetőnek
Várjon a visszahívásra