Eladó lakás Budapest XI. ker, Sasad, 139 000 000 Ft

Leírás

SASADON, ÚJÉPÍTÉSŰ PENTHOUSE LAKÁS PANORÁMÁS TERASSZAL ÉS LIFTKAPCSOLATTAL – PRÉMIUM MINŐSÉGBEN, 3 LAKÁSOS TÁRSASHÁZBAN!

Eladó egy különleges hangulatú, tetőtéri penthouse lakás egy mindössze 3 lakásos, LIFTES társasházban, csendes, zöld környezetben. A lakás ideális választás azoknak, akik a modern városi életstílust szeretnék ötvözni a nyugodt, exkluzív otthon kényelmével – kompromisszumok nélkül.

A lakás főbb jellemzői:
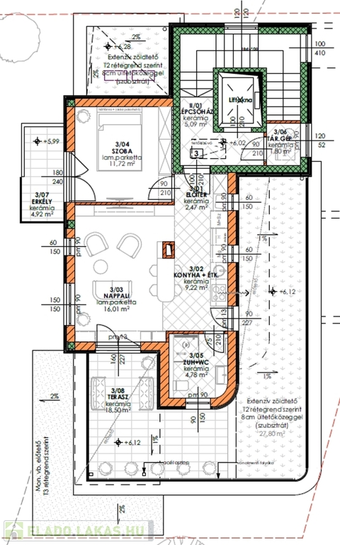
• 55 m² hasznos alapterület, nappali + 1 hálószoba
• Amerikai konyhás nappali (27,81 m²) – világos, nagy üvegfelületekkel, közvetlen kijárattal a teraszra
• 12,67 m²-es hálószoba, ideális háló vagy dolgozószoba
• Tágas, L-alakú TERASZ – reggeli kávéhoz, baráti összejövetelekhez, napozáshoz
• Fürdőszoba és külön WC, igényes burkolatokkal
• Külön háztartási helyiség
• Privát, zárható tároló

Műszaki tartalom:
• Modern hőszivattyús fűtés padlófűtéssel – energiahatékony és korszerű megoldás
• Lift közvetlenül a teremgarázsból a lakás szintjére
• Nagy üvegfelületek, kiváló tájolás – természetes fény egész nap
• Minőségi burkolatok, igényes kivitelezés

Külön megvásárolandó:
• Teremgarázs-beállóhely: +15 M Ft
• Zárható tárolóhelyiség: +3,1 M Ft

Várható átadás:2026. III. negyedév


Ár: 139 M Ft

Ez a penthouse lakás tökéletes választás egyedülállóknak, pároknak vagy akár nyugodt, minőségi otthont kereső idősebbeknek is. Ritka lehetőség, hogy ilyen kis lakásszámú, modern társasházban elérhető legyen egy felső szintű, panorámás lakás – ne hagyd ki!

További információért, műszaki leírásért vagy alaprajzért keress bizalommal!

Lakás részletei

Ár: 139 000 000 Ft
Méret: 55 négyzetméter
Azonosító: 11564784
Városrész: Sasad
Emelet: 2. emelet
Építőanyag: Tégla
Fűtés jellege: Hőszivattyú
Ingatlan állapota: Épülő
Komfort fokozat: Dupla komfort
Építési év: Új építésű
Elhelyezkedés: Társasház
Tulajdonviszony: Saját
Kilátás: panorámás
Kert: Közös telek
Egész szobák: 2

Egyéb jellemzők

  • Erkély
  • Garázs
  • Klíma
  • Lift
  • Tároló

Így keressen eladó lakást négy egyszerű lépésben. Csupán 2 perc, kötelezettségek nélkül!

Szűkítse a eladó lakások
listáját
Válassza ki a megfelelő
eladó lakást
Írjon a hirdetőnek
Várjon a visszahívásra