Eladó lakás Budapest VIII. ker 102 000 000 Ft

Leírás

Projekt
1082 Budapest BAROSS u. 106.

Modern lakások Józsefváros fő utcájában, a Baross utcában.

Az Ingatlan praktikusan kialakított, emeleti erkélyes vagy kertkapcsolatos lakásai minőségi és kényelmes életteret jelentenek családoknak és egyedülállóknak egyaránt. A karnyújtásnyira található Corvin Sétány és Corvin Plaza számos kikapcsolódási- és vásárlási lehetőséget, valamint szolgáltatást kínál: mozi, éttermek, borozók, élelmiszerboltok, pékségek, zöldséges, bank, posta, patika, szépségszalon, ruhaszervíz, mosoda, de akár fogorvos is megtalálható.

Az Baross 106 Residence lakásainak hűtését-fűtését mennyezethűtés-fűtés panelek szolgáltatják, amelynek teljesítményét a zárófödémen elhelyezett hőszivattyú biztosítja. A rendszer megújuló energiát használ és a nagy méretű, mennyezetről leadott hősugárzó technológiának köszönhetően egyenletes hűtést-fűtést biztosít, amely emeli a lakások hőkomfort érzetét.

A korábbi, egy területre irányított hűtő-fűtő rendszerektől eltérően az egyenletes hőleadás következtében a lakásban nem alakulnak ki hidegebb vagy melegebb pontok. A helyiségekben sem radiátorok sem klímaegységek nem kerülnek kiépítésre, így a szobák könnyebben berendezhetőek és a ház homlokzatát sem terhelik a külső klímaegységek.

Az ingatlan 869 nm-en helyezkedik el 60%-os beépítettséggel. 8 szinten, 25 méteres építménymagasággal.

A különböző szinteken elhelyezkedő udvar rész parkosításon esik át.

A lakóegységben 40-44 lakás helyezkedik el 2077 nm-en változatos méretekben a 31 nm-től 123 nm-ig az 1 szobástól az 4 szobásig. A kertkapcsolatostól az erkélyesen át a hatalmas tetőteraszosig.

A lakások kialakításánál kiemelten figyeltek a jó bútorozhatóságra, kényelmes lakótérre. Az lakáson belül még választási lehetőség van a burkolatok, szobaszínek tekintetében.

Várható birtokbaadás 2025 2. negyedév.

A házban rendelkezésre állnak, korlátozott darabszámban a parkolóhelyek és a saját tárolók.

A parkolóhelyek megközelítését két autólift teszi kényelmessé és megbízhatóvá.



Fizetési ütemezés : 60-30-10 % készültségi foknak megfelelően. De alkalmazkodunk ügyfeleink egyéni igényeihez.



Bővebb információk : baross106.hu és Hangya Péter +36702721496 [email protected]

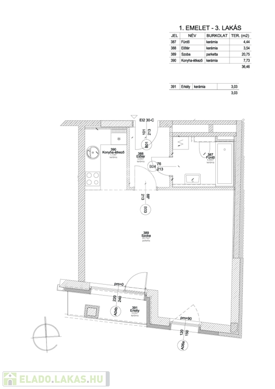
Lakás részletei

Ár: 102 000 000 Ft
Méret: 60 négyzetméter
Azonosító: 11490760
Irodai azonosító: 379119
Cím: Baross utca
Emelet: 3. emelet
Építőanyag: Tégla
Fűtés jellege: Házközponti (egyedi mérővel)
Ingatlan állapota: Kitűnő
Komfort fokozat: Összkomfort
Építési év: Új építésű
Tulajdonviszony: Saját
Kilátás: utcai
Egész szobák: 3

Egyéb jellemzők

  • Erkély
  • Garázs
  • Lift
  • Pince
  • Tároló

Térkép


Így keressen eladó lakást négy egyszerű lépésben. Csupán 2 perc, kötelezettségek nélkül!

Szűkítse a eladó lakások
listáját
Válassza ki a megfelelő
eladó lakást
Írjon a hirdetőnek
Várjon a visszahívásra