Eladó lakás Budapest VI. ker 99 000 000 Ft

Leírás

Eladásra kínálok egy 2017-ben teljes körűen, belsőépítész bevonásával modernizált, fiatalos stílusban kialakított lakást Budapest VI. kerületében, a Vörösmarty utcában.

Az ingatlan elhelyezkedése elsőrangú, hiszen a közlekedési csomópontok (Oktogon, Nyugati tér a pályaudvarral, valamint a 4-6-os villamos, illetve az 1-es, 2-es és 3-as metró vonalai) könnyedén elérhetők, továbbá a szórakozási és bevásárlási lehetőségek (Westend bevásárlóközpont, a híres Andrássy út, valamint számos kávézó és étterem) is mindössze pár perc sétára találhatók.

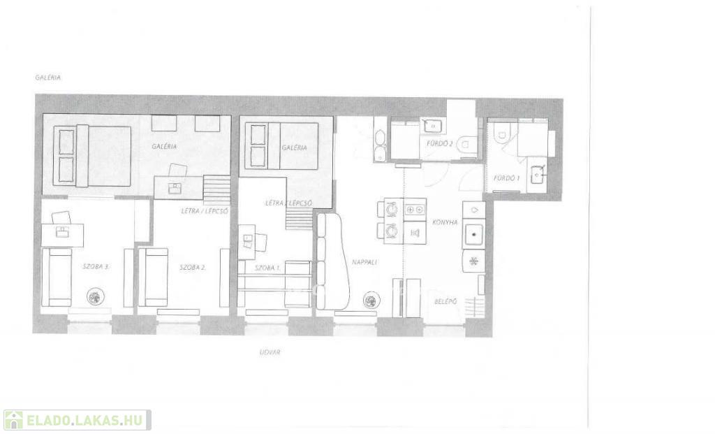
A tulajdoni lap szerint 71 nm-es alapterület a nagy belmagasság révén galériás megoldásokkal bővült.

Az amerikai konyhás nappali mellett három, külön bejáratú, jól kihasználható méretű hálószoba kapott helyet (egyenként 11, 15 és 12 nm-esek), valamint két fürdőszoba is rendelkezésre áll. Mindkettőben található WC, mosdó és zuhanyzó, az egyik helyiségben pedig mosó- és szárítógép is beépítésre került.

Az ablakok a nyugodt belső udvarra néznek, ahol a kerékpárok tárolása biztonságosan megoldott.

A lakás teljes mértékben gépesített és berendezett: beépített sütő, indukciós főzőlap, mosogatógép, hűtő fagyasztóval, nagyméretű televízió több száz csatornával, valamint üvegszálas, nagysebességű internetkapcsolat is biztosított.

Legyen szó egy hangulatos belvárosi otthonról vagy jövedelmező befektetésről, ez az ingatlan mindkettőnek ideális választás.

Jelenleg is bérbe van adva szobánként 160.000 Ft-ért.

Lakás részletei

Ár: 99 000 000 Ft
Méret: 71 négyzetméter
Azonosító: 11571323
Irodai azonosító: M313869-5057373
Emelet: Földszint
Építőanyag: Tégla
Fűtés jellege: Cirkó
Ingatlan állapota: Kitűnő
Komfort fokozat: Dupla komfort
Építési év: 50 évesnél régebbi
Kilátás: udvari
Egész szobák: 1
Fél szobák: 3

Egyéb jellemzők

  • Lift

Térkép


Így keressen eladó lakást négy egyszerű lépésben. Csupán 2 perc, kötelezettségek nélkül!

Szűkítse a eladó lakások
listáját
Válassza ki a megfelelő
eladó lakást
Írjon a hirdetőnek
Várjon a visszahívásra