Eladó lakás Budapest VI. ker 351 290 000 Ft

Leírás

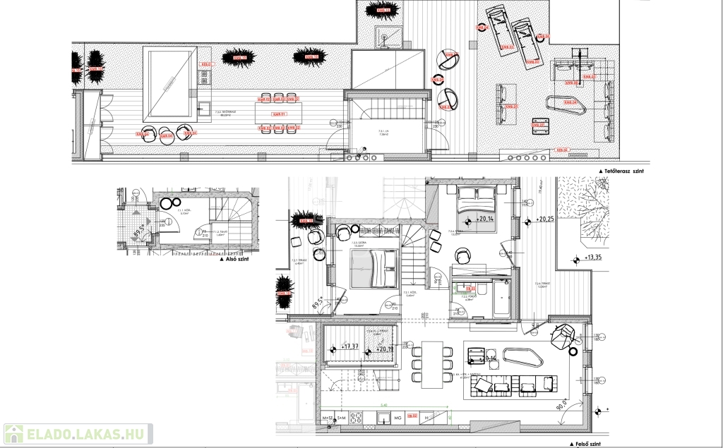
Exkluzív kivitelű luxus apartman

A kubatúrába integrálódó zöld teraszok, tetőteraszok panorámája, modern építészeti térkapcsolatokkal és nagy üvegfelületekkel egyesül. Az így kialakult nyitott tágas és napfényes terek, tovább erősítik az ingatlanok egyediségét. Fontos cél, hogy a lakás belsőépítészeti vezetéssel, intelligens megoldásokkal került kialakításra. Kiemelt figyelmet kapott az anyagok minősége és a beépített technológia.


Legújabb nemzetközi trendeknek megfelelő belsőépítészet

•Modern igényeket kielégítő alaprajzi elrendezések
•Hatalmas ablakfelületek, lélegzetelállító panoráma
•Elegáns belsőépítészeti megoldások
•Magas minőségű hideg és meleg burkolatok
•Prémium csaptelepek és szaniterek
•Az otthon maximális intimitása biztosított


Csúcstechnológiájú gépészeti és Smart Home megoldások

A lakás hőellátását és hűtését teljesen megújuló energiaforrással, a külső levegő hőenergiájának felhasználásával terveztük, amelyet osztott „Split” rendszerű hőszivattyúval hasznosítunk hűtési, fűtési és használati melegvíz termelés célra. A hőszivattyúk elektromos ellátása GEO tarifás áram vételezéssel történik. Ezenkívül a lakás magas színvonalú Smart Home rendszerrel van felszerelve.


•Energiatakarékos és környezettudatos egyedi hőszivattyús okos hűtés/fűtés rendszer, távoli vezérléssel
•Zöld Energia felhasználási lehetőség GEO tarifa
•Smart Home rendszer
•Okos világítási rendszer, távoli vezérléssel
•Beépített riasztó rendszer, távoli vezérléssel
•Beépített árnyékolási technikák, elektromos redőnyök, zsaluziák, távoli vezérléssel
•3 rétegű, hő és hangszigetelő üvegezésű alumínium nyílászárók
•Tetőteraszon jakuzzi és kerti zuhany
•Szauna telepítési lehetőség
•Olasz konyhabútorok, legmodernebb konyhagépekkel
•Elektromosan működő bejárati ajtó, távoli vezérléssel

Az épületben AirBNB engedélyezett!!

Lakás részletei

Ár: 351 290 000 Ft
Méret: 84 négyzetméter
Azonosító: 11257265
Irodai azonosító: 354697
Cím: Király utca
Erkély mérete: 97.00 négyzetméter
Emelet: 4. emelet
Építőanyag: Tégla
Fűtés jellege: Hőszivattyú
Ingatlan állapota: Kitűnő
Komfort fokozat: Dupla komfort
Építési év: Új építésű
Tulajdonviszony: Saját
Kilátás: panorámás
Egész szobák: 3

Egyéb jellemzők

  • Erkély
  • Garázs
  • Lift
  • Pince
  • Tároló
  • Kocsibeálló

Térkép


Így keressen eladó lakást négy egyszerű lépésben. Csupán 2 perc, kötelezettségek nélkül!

Szűkítse a eladó lakások
listáját
Válassza ki a megfelelő
eladó lakást
Írjon a hirdetőnek
Várjon a visszahívásra