Eladó lakás Budapest VI. ker, Terézváros, 145 300 000 Ft

Leírás

Kulcsrakész, KÉT LAKÁSSÁ alakított nagypolgári otthon a belváros szívében – egyben eladó!

Eladásra kínálunk egy különleges adottságokkal rendelkező, frissen felújított, kétszintes lakást, amelyet jelenlegi formájában két, külön bejáratú egységre osztottak. A lakás a belvárosi életstílus minden előnyét kínálja: egy 1890-ben épült, jó állapotú, nagypolgári társasházban található, csendes, ugyanakkor kiválóan megközelíthető környéken.

A teljes, 2025-ben befejezett felújítás során a kivitelezők a prémium minőséget helyezték előtérbe:
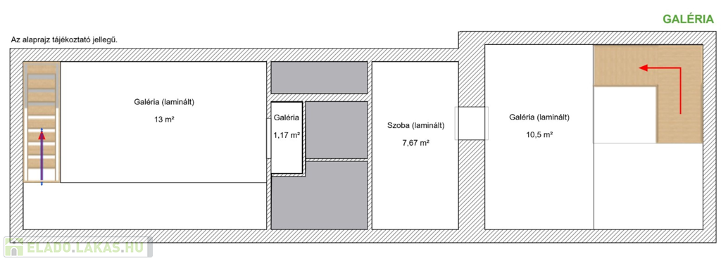
95 m² valódi alapterület (hivatalos: 62 m²)
4 méteres belmagasság, ízlésesen kialakított galériás megoldásokkal
2 különálló lakásrész, mindkettő külön mérőórákkal és saját fürdőszobával
Az ingatlan tehermentes, 1/1-es tulajdonban van, és azonnal költözhető


PRÉMIUM MŰSZAKI ÉS ESZTÉTIKAI TARTALOM:
Modern, gépesített konyhák, beépített konyhabútorokkal
Egyedi design beltéri ajtók, háromrétegű, hőszigetelt nyílászárók
Gondosan megtervezett világítás, LED fényforrásokkal és designer lámpákkal
Fürdőszobák magas felszereltséggel, modern burkolatokkal
Bal oldali lakás: prémium klímás fűtés
Jobb oldali lakás: gáz cirkó fűtés + klíma


TOVÁBBI ELŐNYÖK:
Csendes, udvari fekvés, mégis közel mindenhez
Jó állapotú társasház, klasszikus körfolyosós elrendezéssel
Lift nincs, de az ingatlan az első emeleten található
Közös költség: 21 390 Ft
Parkolás: utcán, fizető övezetben


Airbnb a házban nem működik, így a lakókörnyezet nyugodt, rendezett. Az ingatlan használatára ügyvédi megosztási szerződés készült, ez biztosítja a két lakás külön működését.

KINEK AJÁNLJUK?
Tökéletes választás befektetőknek, többgenerációs családoknak, vagy azoknak, akik otthonukat és irodájukat egy helyen, de jól elválasztva szeretnék tudni.
Az ár irányár, alku minimális – ritka lehetőség, magas minőség!

További információért és megtekintéssel kapcsolatban keressen bizalommal – akár hétvégén is!

Lakás részletei

Ár: 145 300 000 Ft
Méret: 95 négyzetméter
Azonosító: 11525969
Városrész: Terézváros
Emelet: 1. emelet
Építőanyag: Tégla
Fűtés jellege: Cirkó
Ingatlan állapota: Felújított
Komfort fokozat: Dupla komfort
Építési év: 50 évesnél régebbi
Elhelyezkedés: Társasház
Bútorozott: Bútorozott
Kilátás: utcai
Egész szobák: 2
Fél szobák: 3
Nappalik: 2

Egyéb jellemzők

  • Erkély
  • Klíma
  • Lift

Térkép


Így keressen eladó lakást négy egyszerű lépésben. Csupán 2 perc, kötelezettségek nélkül!

Szűkítse a eladó lakások
listáját
Válassza ki a megfelelő
eladó lakást
Írjon a hirdetőnek
Várjon a visszahívásra