Eladó lakás Budapest IX. ker 159 000 000 Ft

Leírás


Az 1920-as években épült, polgári stílusú, rendszeresen karbantartott társasház negyedik emeletén található lakás. A lakóházban lift működik.

A lakásról:

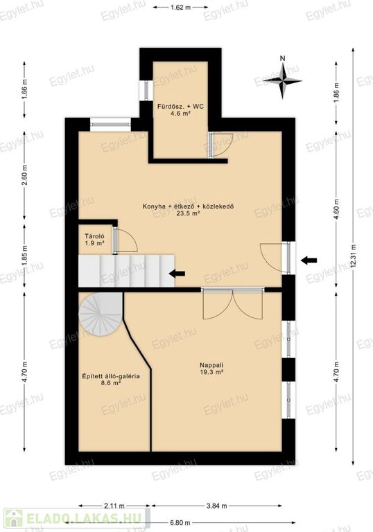
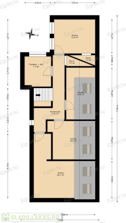
-belső kétszintes lakás,

-az alsó szinten étkező + konyha, nappali állógalériával, fürdőszoba WC-vel, lépcső alatti tároló került kialakításra,

-a felső szinten folyosóról külön nyíló 4 hálószoba, gardrób és fürdőszoba WC-vel került kialakításra,

-2013-ban történt a lakás jelenlegi belső kialakítása,

-minden szoba, konyha, fürdőszoba ablakos, világos,

-a fűtést kondenzációs gázcirkó radiátorokkal biztosítja, az alsó szinten található fürdőszobát külön villanybojler látja el meleg vízzel, melyet 2025-ben újra cseréltek,

-minden szobában 2024-ben cserélték le újra a hűtő-fűtő légkondicionáló berendezéseket,

-a lakás közös helyiségei tágasak, akár nagyobb család vagy társaság részére is kényelmes helyet biztosítanak.

A lakás esztétikai állapota fiatalos, festés után költözhető. Műszakilag rendszeresen karbantartott jó állapotú.



A környékről: belváros közeli kedvelt utcában, teljes infrastruktúrájú környék. A Duna-partjával párhuzamosan húzódó utca az első utca, melyet csak egy háztömb választ el a Duna-parttól. Kényelmesen elérhető autóval és tömegközlekedéssel éjjel-nappal. A környék kiváló ellátottságú, bevásárlási lehetőségek (Corvin Pláza, Belváros, Váci utca, Duna Ház bevásárlóközpont stb.), szórakozó- és vendéglátóhelyek (Bálna, Ráday utca), parkok (Boráros tér, Bakáts tér, Markusovszky tér, Gizella sétány stb.), szabadtéri sportolás (Duna-part), Budapesti Corvinus Egyetem, SOTE Üllői úti Klinikai és Egyetemi épületei a közvetlen közelben, pár perces sétával elérhetők.

Közlekedés: tömegközlekedéssel éjjel-nappal megközelíthető, villamosok: 2, 2B, 4, 6, 23, 51, 51A; buszok: 2, 6, 15, 54, 55, 212A, 212B, 224, 255E, 918, 923, 934, 979, 979A; HÉV: H7; metró: M3, M4.



Kifejezetten ajánlom nagycsaládosok, összeköltözők, közösségi ingatlankiadással foglalkozó befektetők részére, s akár iroda céljára is.



Meghirdetés előtt az ingatlant részletesen megismertük, s az ingatlan dokumentumait (Tulajdoni lap, TAO, SzMSz, ET) is begyűjtöttük.



Tekintse meg az ingatlanvideót és nézzen körül a lakásban virtuális túrával!

További információkért és megtekintés miatt hívjon bizalommal!

Lakás részletei

Ár: 159 000 000 Ft
Méret: 133 négyzetméter
Azonosító: 11566820
Irodai azonosító: 209001812
Emelet: 4. emelet
Építőanyag: Tégla
Ingatlan állapota: Kitűnő
Komfort fokozat: Dupla komfort
Egész szobák: 5

Egyéb jellemzők

  • Lift

Videók (1)


Így keressen eladó lakást négy egyszerű lépésben. Csupán 2 perc, kötelezettségek nélkül!

Szűkítse a eladó lakások
listáját
Válassza ki a megfelelő
eladó lakást
Írjon a hirdetőnek
Várjon a visszahívásra