Eladó lakás Budapest IX. ker 125 000 000 Ft

Leírás

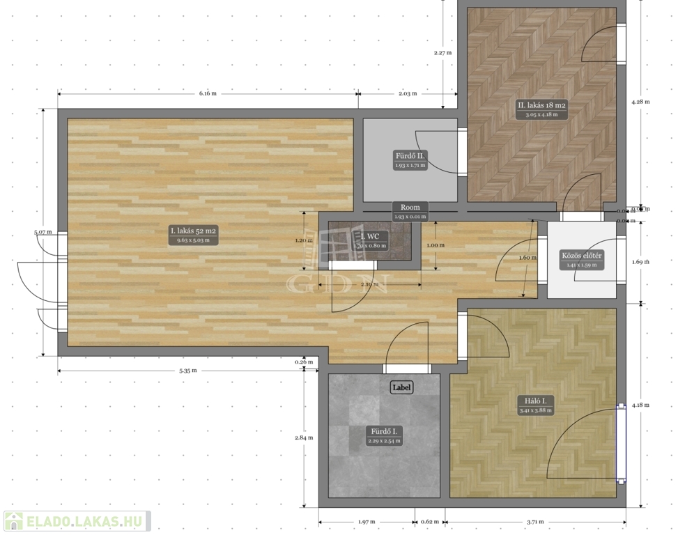
Felújított lakás, két külön lakóegységgel ( kérésre visszaalakítható) a Kálvin térnél!

Eladásra kínálunk a IX. kerület szívében, a Kálvin tér közvetlen közelében, egy teljes körűen felújított, 73 m²-es, napfényes, 5. emeleti lakást.

Az ingatlan jelenleg két különálló lakóegységből áll, de igény esetén átadásig visszaalakítjuk nappali + 2 hálós lakássá.

18 m²-es stúdiólakás

52 m²-es, nappali + hálós lakás

Főbb jellemzők:
Frissen felújított, minőségi anyagokkal, esztétikus és funkcionális kialakítással

Beépített, gépesített konyhák mindkét lakóegységben

Modern, energiatakarékos hűtő-fűtő klímák biztosítják az évszaknak megfelelő komfortot

Külön víz- és villanyórák, alacsony fenntartási költségek.

Elhelyezkedés és közlekedés:
Kiváló lokáció a Kálvin térnél – közvetlen közelben a belvárosi egyetemek (ELTE, Corvinus, BME)

Pár perc sétára: M3-as metró, 4-6-os villamos, troli-, busz- és reptéri járatok

A környék bőséges kulturális, gasztronómiai és kereskedelmi kínálattal rendelkezik

A központi elhelyezkedés ellenére csendes és nyugodt lakókörnyezet.

További információért, megtekintési időpont egyeztetéséhez keressen bizalommal!

Lakás részletei

Ár: 125 000 000 Ft
Méret: 73 négyzetméter
Azonosító: 11597998
Irodai azonosító: 392444
Cím: Üllői út
Emelet: 5. emelet
Építőanyag: Tégla
Fűtés jellege: Villany
Ingatlan állapota: Felújított
Komfort fokozat: Dupla komfort
Építési év: 21-50 éves
Tulajdonviszony: Saját
Kilátás: utcai
Egész szobák: 3

Egyéb jellemzők

  • Erkély
  • Garázs
  • Lift
  • Pince
  • Tároló

Térkép


Így keressen eladó lakást négy egyszerű lépésben. Csupán 2 perc, kötelezettségek nélkül!

Szűkítse a eladó lakások
listáját
Válassza ki a megfelelő
eladó lakást
Írjon a hirdetőnek
Várjon a visszahívásra