Eladó lakás Budapest IX. ker 99 900 000 Ft

Leírás

***IX. kerület, a KÁLVIN TÉR közelében - 3 szoba, POLGÁRI hangulat, TÁGAS terek!***

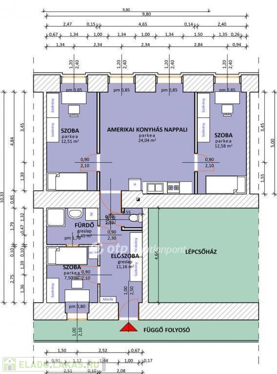
Budapest szívében, a KÁLVIN TÉR közvetlen közelében eladó egy 72 nm-es, téglaépítésű, POLGÁRI lakás, amely a múlt század eleganciáját ötvözi a MODERN kényelmi megoldásokkal.

A lakás 3 egész szobával és 1 félszobával rendelkezik, a 4,5 méteres belmagasságnak köszönhetően rendkívül tágas és VILÁGOS tereket biztosít.

A lakás DUPLAKOMFORTOS, gáz-cirkó fűtéssel felszerelt, belső és külső állapota is JÓ, így azonnal költözhető.
Az ingatlan teljesen BÚOROZOTT és berendezett.

Nagy előny: jelenleg is megbízható BÉRLŐK lakják, akik szívesen maradnának, amennyiben új tulajdonosa BEFEKTETÉSI CÉLBÓL vásárolja meg a lakást.
Ez biztos, azonnali és folyamatos HOZAMOT jelenthet a leendő befektető számára.

A társasház RENDEZETT, zárt lépcsőházzal rendelkezik, a közös költség mindössze 15.000 Ft.
Parkolás közterületen, fizetős zónában lehetséges.

Főbb jellemzők:

-72 nm-es téglaépítésű lakás
-3 szoba + 1 félszoba
-4,5 nm-es belmagasság, polgári hangulat
-Duplakomfort, gáz-cirkó fűtés
-Bútorozott, azonnal költözhető
-Jó állapotban, rendezett társasház
-Stabil, bent lakó bérlők, biztos hozam befektetőknek
-Kiváló közlekedés, Kálvin tér pár perc sétára

Ez a lakás igazi RITKASÁG a belvárosban: tágas, napfényes, POLÁRI stílusú otthon, amely befektetőknek és saját célra vásárlóknak egyaránt IDEÁLIS választás.

Ha ingatlan vásárlásával egy ÉRTÉKÁLLÓ BEFEKTETÉST is szeretne egyben, akkor ez egy remek lehetőség az ön számára.

Az ingatlan finanszírozásához az OTP Bank vevőinket ingyenes banki tanácsadással, valamint kedvezményes hitelkonstrukció kiválasztásával támogatja, legyen az CSOK Plusz, babaváró, 3%-os OTTHON Start hitel.
Az adásvételi szerződés megkötéséhez igény esetén megbízható ügyvédi közreműködést biztosítunk és segítséget nyújtunk az adásvételhez kapcsolódó ügyek intézéséhez.

Ha felkeltette érdeklődését az ingatlan, kérem, hívjon bizalommal akar hétvégén is!

#9kerulet #polgari #kalvinter

Lakás részletei

Ár: 99 900 000 Ft
Méret: 69 négyzetméter
Azonosító: 11571847
Irodai azonosító: M313394-5059529
Cím: Budapest 9. ker.i 69 nm-es lakás eladó
Emelet: 1. emelet
Építőanyag: Tégla
Fűtés jellege: Cirkó
Ingatlan állapota:
Komfort fokozat: Dupla komfort
Építési év: 50 évesnél régebbi
Kilátás: utcai
Egész szobák: 3
Fél szobák: 1

Térkép


Így keressen eladó lakást négy egyszerű lépésben. Csupán 2 perc, kötelezettségek nélkül!

Szűkítse a eladó lakások
listáját
Válassza ki a megfelelő
eladó lakást
Írjon a hirdetőnek
Várjon a visszahívásra