Eladó lakás Budapest IV. ker 71 500 000 Ft

Leírás

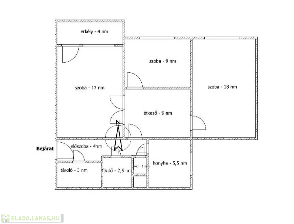
Újpesten az Árpád üzletház közelében , Horváth cukrászda, M3 metró stb...eladó egy tágas világos 71nm-es,3 szoba hallos, ERKÉLYES, PANORÁMÁS távfűtéses, 4.emeleti panellakás.
Közös költség 24eft a felújítási alappal együtt.
Távfűtés 15eft.
A társasház 1985-ben épült, karbantartott.
Az utcán ingyenes a parkolás.
20E busz, Spar, bankok parkok a közelben.

Lakás részletei

Ár: 71 500 000 Ft
Méret: 71 négyzetméter
Azonosító: 11574098
Irodai azonosító: 388763
Cím: Rózsa utca
Emelet: 4. emelet
Építőanyag: Panel
Fűtés jellege: Távfűtés
Ingatlan állapota:
Komfort fokozat: Összkomfort
Építési év: 21-50 éves
Tulajdonviszony: Saját
Kilátás: panorámás
Egész szobák: 3

Egyéb jellemzők

  • Erkély
  • Garázs
  • Lift
  • Pince
  • Tároló

Térkép


Így keressen eladó lakást négy egyszerű lépésben. Csupán 2 perc, kötelezettségek nélkül!

Szűkítse a eladó lakások
listáját
Válassza ki a megfelelő
eladó lakást
Írjon a hirdetőnek
Várjon a visszahívásra