Eladó lakás Budapest III. ker 69 900 000 Ft

Leírás

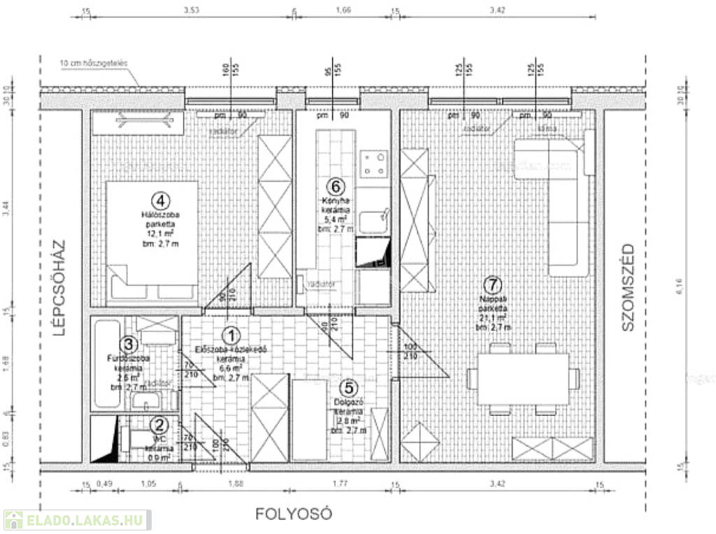
III. ker, Kaszásdűlőn, csendes, nyugodt környezetben eladó egy 52 m²-es, 2 szobás, 7. Emeleti, BERENDEZET,IGÉNYES, Felújított téglalakás,kifizetett panelprogramos, akadálymentes, két liftes társasházban.

A lakás igényesen felújított állapotú, hűtő-fűtő GREE klímával felszerelt, külön fürdővel és WC-vel, összkomfortos kialakítással.
A társasház 2011-ben részt vett a panelprogramban, amelynek keretében a ház 10 cm külső szigetelést, a lakások egyedi fűtésmérőt, valamint új lapradiátorokat kaptak. Ennek köszönhetően a rezsiköltség alacsony, a panelprogram anyagilag rendezett.
A lakás további felújításai:
magas minőségű acél biztonsági bejárati ajtó
konyha és WC 2021-ben teljes körűen felújítva
szobák falai glettelve, igényesen festve
műanyag nyílászárók redőnnyel és szúnyoghálóval
A közös költség 17 000 Ft/hó, a fűtés távfűtés egyedi méréssel, kiegészítve klímával.
A környék infrastruktúrája kiváló: bevásárlási lehetőségek, gyógyszertár, orvos, posta, pékség, óvoda, iskola mind néhány percen belül elérhetők. A Graphisoft Park kb. 10 perc sétára található.
Közlekedése kiváló: H5 HÉV, több buszjárat, éjszakai járatok, valamint az 1-es villamos és a fonódó villamoshálózat is könnyen elérhető. Autóval a Szentendrei út gyorsan megközelíthető, parkolás utcán, fizetős övezetben lehetséges.

Lakás részletei

Ár: 69 900 000 Ft
Méret: 52 négyzetméter
Azonosító: 11597764
Irodai azonosító: 392422
Cím: Kaszásdűlő utca
Emelet: 7. emelet
Építőanyag: Panel
Fűtés jellege: Távfűtés
Ingatlan állapota: Felújított
Komfort fokozat: Összkomfort
Építési év: 21-50 éves
Tulajdonviszony: Saját
Kilátás: utcai
Egész szobák: 2

Egyéb jellemzők

  • Erkély
  • Garázs
  • Lift
  • Pince
  • Tároló

Térkép


Így keressen eladó lakást négy egyszerű lépésben. Csupán 2 perc, kötelezettségek nélkül!

Szűkítse a eladó lakások
listáját
Válassza ki a megfelelő
eladó lakást
Írjon a hirdetőnek
Várjon a visszahívásra