Eladó lakás Budapest III. ker 205 900 000 Ft

Leírás

Oázis Óbuda szívében – Penthouse jellegű, nagyteraszos luxuslakás eladó

Kisbojtár utca 2., III. kerület

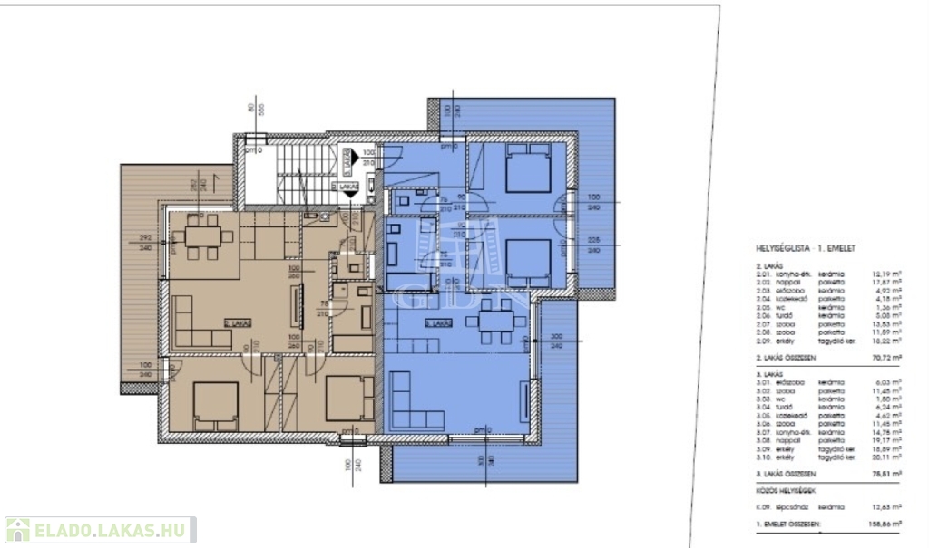
2. emelet, 4. lakás

Alapterület: 82,89 m²

Terasz: 83,79 m²

Ár: 205,9 M Ft
A teremgarázs ára 8 M Ft, melyet kötelező megvenni


Főbb jellemzők
Penthouse jellegű, világos és tágas elrendezés

Két hatalmas, napsütötte terasz – ideális pihenésre vagy vendégek fogadására

Modern, A+ energetikai besorolású műszaki megoldások

Csendes, kertvárosias környezet, mégis kiváló közlekedéssel


A Kisbojtár Projekt

A lakás a Kisbojtár utca és a Bojtár utca találkozásánál, a III. kerület egyik barátságos, nyugodt lakóövezetében található, a Bécsi út és Szentendrei út között. A környéken minden megtalálható, ami a kényelmes városi élethez szükséges: bölcsőde, óvoda, iskolák, szuper- és hipermarketek mindössze néhány perc alatt elérhetők.

A projektben két épület készült, épületenként 4-4 lakással. A földszinti lakások közvetlen kertkapcsolatosak, az emeleti lakásokhoz pedig tágas teraszok tartoznak. A pinceszinten kényelmes teremgarázs-beállók és közös gépészeti helyiségek találhatók.

⚙️
Műszaki tartalom
A+ energetikai besorolás

Daikin levegő-levegő hőszivattyú, padlófűtéssel

Szobánként hűtő-fűtő fancoil egységek

5 légkamrás, 3 rétegű üvegezésű nyílászárók

Elektromos alumínium redőnyök előkészítése

15 cm kőzetgyapot homlokzati szigetelés

Kiváló minőségű, nagylapos fürdőszobai burkolatok


Egyéb információk
Az ingatlan azonnal költözhető, per- és tehermentes

Nem beruházás alatt áll – a lakás kész, kulcsrakész állapotban várja új tulajdonosát

Kiváló befektetési lehetőség és presztízs értékű otthon egyaránt

Érdeklődjön még ma, és legyen Öné ez a modern, elegáns, zöldenergiás otthon Óbuda egyik legkedveltebb részén!

Lakás részletei

Ár: 205 900 000 Ft
Méret: 82 négyzetméter
Azonosító: 11569728
Irodai azonosító: 388065
Cím: Kisbojtár utca
Emelet: 1. emelet
Építőanyag: Tégla
Fűtés jellege: Hőszivattyú
Ingatlan állapota: Kitűnő
Komfort fokozat: Összkomfort
Építési év: Új építésű
Tulajdonviszony: Saját
Kilátás: udvari
Egész szobák: 3

Egyéb jellemzők

  • Erkély
  • Garázs
  • Lift
  • Pince
  • Tároló

Térkép


Így keressen eladó lakást négy egyszerű lépésben. Csupán 2 perc, kötelezettségek nélkül!

Szűkítse a eladó lakások
listáját
Válassza ki a megfelelő
eladó lakást
Írjon a hirdetőnek
Várjon a visszahívásra