Eladó lakás Budapest II. ker 320 000 000 Ft

Leírás

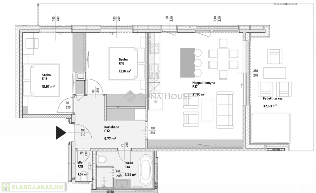
Új építésű elegancia Pasaréten - ajándék jacuzzival!A kortárs luxus új szintje: modern építészet, innovatív technológia és kompromisszummentes kényelem.A II. kerület egyik legkedveltebb, zöldövezeti részén, Pasarét szívében valósult meg ez az exkluzív, 2025-ben épült 5 lakásos, liftes társasház, melyben most még elérhetők prémium kialakítású lakások.A dús növényzettel teli, 2234 m2-es telekre épült 3 szintes ingatlan a városi kényelem és a természetközeli élet ideális kombinációját kínálja. A tervezés során kiemelten ügyeltek a privát terekre. Nagy figyelmet kapott a praktikusság, a tágas élettér és a kényelmes, jól kihasználható teraszok kialakítása, melyek alapterületének arányos része a megadott összterületbe is beleszámít. A teraszok jacuzzival és pergolával felszereltek. Kertkapcsolat a földszinten, zöld lombkoronás kilátás az emeleten, és lélegzetelállító panoráma a penthouse-ból - mindez elegáns, prémium kivitelben. A lakások mindegyike értékálló, gondosan megtervezett otthon a legigényesebbek számára. A társasház épülete minőségi anyagokból, modern építészeti megoldásokkal készült, letisztult homlokzattal és elegáns terekkel. Minden lakás világos, tágas, teraszos, és energiatakarékos gépészeti megoldásokkal felszerelt. A konyhabútor és a beépíthető gépek kialakítása és beszerzése a leendő tulajdonosra vár, teljes mértékben az egyéni ízléséhez és igényekhez igazíthatóan.A lakások azonnal költözhetőek. Műszaki tartalom:- előregyártott zsalupallós, monolit vasbeton födémszerkezetek- 20 cm vastag, többrétegű lakáselválasztó falak, hálószobák között 12,5 cm vastag falszerkezetek- homlokzati falakon 20 cm fekete üvegszövettel kasírozott kőzetgyapot hőszigetelés- rámpafűtés a kocsibejárók, garázsfelhajtók burkolata alatt - akadálymentes felvonó- geotermikus hűtés-fűtés - Wavin rendszerű meleg vizes központi padlófűtés, mennyezetfűtés-hűtés, kiegészítésként Daikin fan-coilok- költséghatékony H-tarifa- Helios KWL típusú, központi hővisszanyerős szellőzőgép - távolvasási funkcióval rendelkező vízmérők- nyílászárók üvegezése 3 rétegű hőszigetelő- a fürdőkben elektromos törölközőszárítós radiátorok- a fürdő és wc helyiségekben elektromos padlófűtés- OKOSOTTHON LOXONE : világításvezérlés, árnyékolás, fűtés és hűtés, ébresztés, jelenlét szimuláció, riasztás, jó éjt mód, stb.+ ajándék jacuzziMinden lakáshoz 2 garázshely és 1 tároló tartozik, melyek ára a lakás vételárán felül fizetendő.Főbb előnyök: Pasarét - zöldövezet Buda közepénRengeteg fa, park, csendes utcák - szinte kertvárosi hangulat, de mégis közel a belvároshoz (autóval vagy busszal 10-15 perc a Széll Kálmán tér). Kiváló közlekedésAz 5-ös, 91-es, 155-ös, 291-es buszok és a 61-es villamos megállói a közelben. Minőségi lakókörnyezetSok régi villaház, új, modern társasház, és igényesen felújított lakás van itt. Emiatt az ingatlanárak is magasabbak az átlagosnál. Presztízs és nyugalomPasarétnek van egyfajta régi budai polgári hangulata - sok híres ember is itt lakott (pl. építészek, művészek, értelmiségiek). A környék csendes, biztonságos, és kifejezetten családbarát. Kávézók, iskolák, sportlehetőségekNépszerű hely a Pasarét Bisztró, a Pasaréti templom melletti tér és környezete. A közelben van több jó iskola (pl. Piarista Gimnázium, Francia Iskola, Britannica International School). A környék ideális futásra, sétára, kutyázásra is.Ez az ingatlan ideális választás mindazoknak, akik a budai eleganciát, a minőséget és a nyugalmat keresik, anélkül, hogy lemondanának a város közelségéről. Ha szereti a zöld, csendes, biztonságos, mégis város közeli életstílust, akkor hívjon bizalommal akár hétvégén is!Amit az Ön számára biztosítani tudok: ingatlanok eladásának és vásárlásának teljes körű ügyintézése, ingyenes tanácsadás, értékbecslés, megbízható ingatlanos szakjogász, energetikus, hitelügyintézés a legjobb feltételekkel, gyorsan és díjmentesen.

Lakás részletei

Ár: 320 000 000 Ft
Méret: 95 négyzetméter
Azonosító: 11590857
Irodai azonosító: PR018560/LK/26075-5119414
Cím: Budapest 2. ker.i eladó 95 nm-es lakás
Emelet: Földszint
Építőanyag: Tégla
Fűtés jellege: Hőszivattyú
Ingatlan állapota: Épülő
Építési év: Új építésű
Egész szobák: 3

Egyéb jellemzők

  • Erkély
  • Lift

Térkép


Így keressen eladó lakást négy egyszerű lépésben. Csupán 2 perc, kötelezettségek nélkül!

Szűkítse a eladó lakások
listáját
Válassza ki a megfelelő
eladó lakást
Írjon a hirdetőnek
Várjon a visszahívásra