Eladó lakás Budapest II. ker 200 000 000 Ft

Leírás

Luxus életérzés a természet ölelésében – modern műszaki tartalommal Budapest II. kerületében!

Budapest II. kerületének egyik legkedveltebb, exkluzív részén, Pesthidegkút–Ófalu csendes, zöldövezeti környezetében kínálunk megvételre egy kifinomult műszaki megoldásokkal megépített, kétlakásos újépítésű társasház emeleti, beépített tetőterű, amerikai-konyhás nappali + 3 szoba, galériás, 116 + 48m2-es, összkomfortos, lakását.

Ez az otthon tökéletes választás azok számára, akik a modern technológia nyújtotta komfortot és az elegáns, természetközeli életérzést egyaránt fontosnak tartják.

Átgondolt térszervezés – funkcionalitás és elegancia

A lakás kialakítása a modern élettér minden igényét kielégíti, ahol a tágas, világos terek és a letisztult design harmonikus egységet alkotnak:

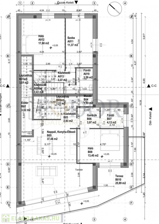
Emeleti lakószint (116 m²):
• előtér és közlekedő
• mosdó
• tágas nappali amerikai konyhával és étkezővel
• szoba
• gardrób
• fürdőszoba WC-vel
• külön gépészeti helyiség
• belső lépcsőház
• erkély

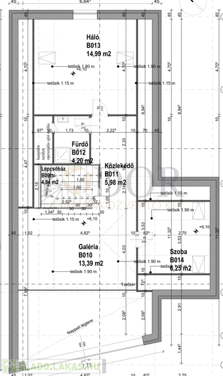
Tetőtér (48 m²):
• közlekedő
• 2 szoba
• fürdőszoba WC-vel
• galéria, amely különleges térélményt biztosít
• lépcsőház

Prémium műszaki tartalom – kompromisszumok nélkül

Az ingatlan műszaki kialakítása a legmodernebb elvárások szerint készült, kiemelkedő energiahatékonyságot és magas szintű komfortot biztosítva.

Szerkezet
o 30 cm-es Porotherm főfalak

Energiahatékony gépészet
o DAIKIN ALTHERMA 6 kW levegő-víz hőszivattyú
o padlófűtés + mennyezeti hűtés-fűtés rendszer
o törölközőszárítós radiátorok
o beépített 180 literes HMV tartály
o H tarifás villanyóra a kedvező üzemeltetésért
Hűtés
A tetőtérben fan-coil rendszer biztosítja az optimális hőmérsékletet.
Nyílászárók és biztonság
o Schüco Classic, 3 rétegű üvegezésű műanyag nyílászárók
o kívül elegáns antracit, belül letisztult fehér kivitel
o RC3 biztonsági osztályú bejárati ajtó
Árnyékolástechnika
o motoros, rádióvezérlésű alumínium redőnyök
o integrált szúnyoghálóval
o SMART rendszer előkészítéssel
Burkolatok és szaniterek
o prémium melegburkolatok úsztatott aljzaton, padlófűtéshez optimalizálva
o Duravit D-Code szaniterek
o Hansgrohe csaptelepek
Elektromos rendszer
o 3 fázisú ellátás lakásonként
o FI relé és túlfeszültség védelem
o nagyfogyasztók külön áramkörön
Kényelem és biztonság
o Hörmann elektromos, szekcionált garázskapu
o Paradox SP6000 riasztórendszer kültéri szirénával
o Legrand kaputelefon rendszer
o Az elegáns erkély biztonsági üvegkorláttal, amely modern megjelenést és zavartalan kilátást biztosít.

Ez a lakás ideális választás azok számára, akik a modern műszaki tartalom, a tágas terek és a kifinomult, luxus életérzés tökéletes kombinációját keresik egy exkluzív budai környezetben.

• Kivitelezés: kulcsrakész állapot 2026.07.30 .

A környék a Budai-hegység lábánál helyezkedik el, így csendes, tiszta levegőjű, kertvárosias hangulat jellemzi, sok zöldfelülettel és kirándulási lehetőséggel. A közvetlen közelben természetvédelmi területek, erdők és túraútvonalak találhatók, ami különösen vonzóvá teszi a környéket a szabadidős tevékenységeket kedvelők számára.

Az infrastruktúra jól kiépített: a közelben elérhetők bevásárlási lehetőségek, iskolák, óvodák, valamint nemzetközi intézmények is, így a mindennapi élet kényelmesen megoldható. Tömegközlekedéssel a város többi része is könnyen megközelíthető, ugyanakkor a környék megőrzi nyugodt, forgalomtól mentes jellegét.

Összességében a környezet egy exkluzív, mégis családbarát budai lokáció, ahol a természet közelsége és a városi kényelem harmonikusan találkozik.

Irodánk teljes körű segítséget nyújt:
•díjmentes hitelügyintézés
•CSOK Plusz tanácsadás
•banki partneri háttér a vásárlás minden lépésében

Az alaprajz és a leírás tájékoztató jellegű.

Lakás részletei

Ár: 200 000 000 Ft
Méret: 164 négyzetméter
Azonosító: 11611701
Irodai azonosító: 351917
Emelet: 1. emelet
Építőanyag: Tégla
Fűtés jellege: Egyéb
Ingatlan állapota: Kitűnő
Komfort fokozat: Összkomfort
Építési év: Új építésű
Egész szobák: 3

Egyéb jellemzők

  • Erkély
  • Garázs
  • Lift
  • Kertkapcsolat

Így keressen eladó lakást négy egyszerű lépésben. Csupán 2 perc, kötelezettségek nélkül!

Szűkítse a eladó lakások
listáját
Válassza ki a megfelelő
eladó lakást
Írjon a hirdetőnek
Várjon a visszahívásra