Eladó lakás Budakeszi 141 250 000 Ft

Leírás

Közvetlenül a Budakeszi Vadaspark szomszédságában egyedi természetközeli adottságokkal rendelkező családi lakóparkban kínálunk lakásokat eladásra 66 m2; 95 m2; 113 m2 alapterülettel.

A lakópark 5 lakásos társasház első emeletén - földszintjén található a 113 m2-es lakás, amelyhez 45 m2 terasz és saját 150 m2 kerthasználati terület tartozik.

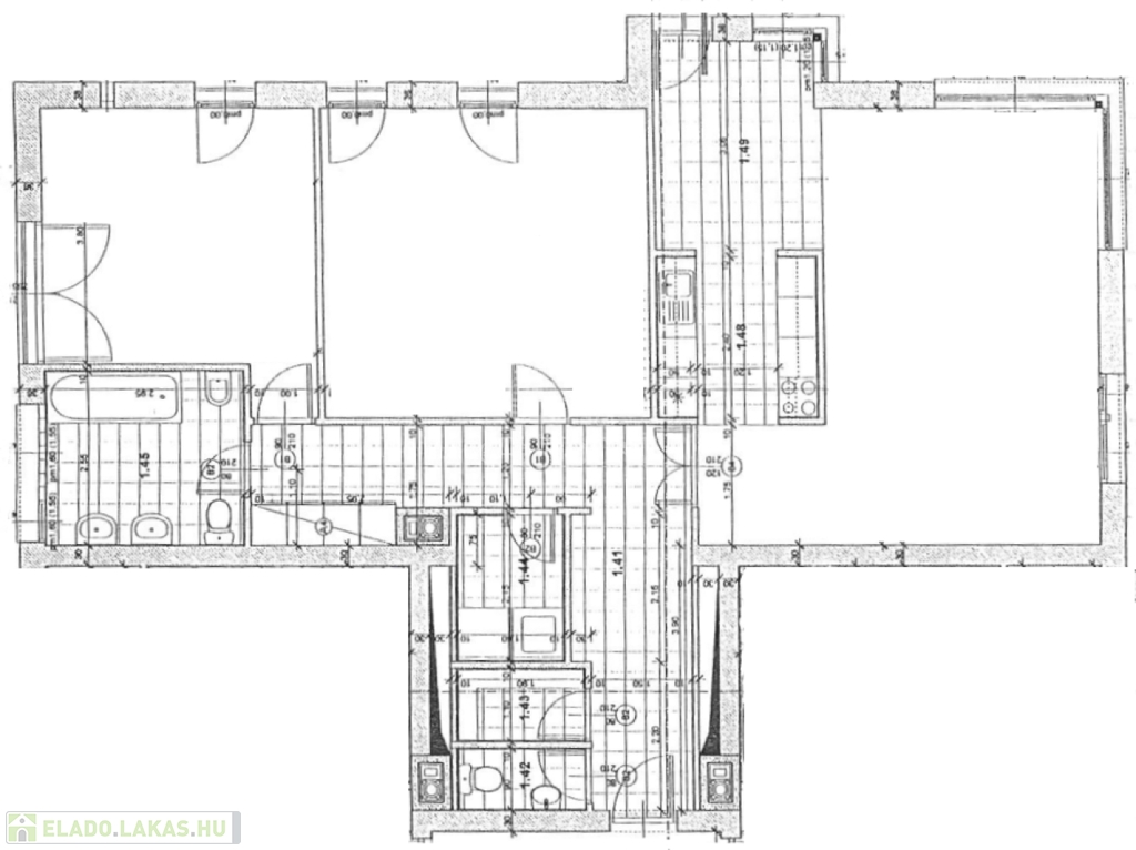
Lakás elrendezése:
• Nappali 30 m2
• Konyha 5,88 m2, étkező 7,32 m2
• Hálószoba 22,31 m2
• Hálószoba 16,9 m2
• Fürdőszoba 7,65 m2
• Kamra 2,05 m2
• Háztartási helyiség 3,44 m2
• Mosdó + toalett 1,71 m2
• Közlekedő + gardrobe 1,71 m2

Tároló: 3 m2

Kültér:
• 45 m2 terasz
• Saját kerthasználati terület

Magas színvonalú kivitelezés – energiatakarékos műszaki tartalom.
A kivitelező cég évtizedek óta minőségi kivitelezéssel épít ingatlanokat.

Műszaki tartalom-kivitelezés:
A ház a mai energiatakarékos műszaki elvárásoknak megfelelően minőségi alapanyagok felhasználásával épült meg.
• A fűtést és a melegvíz ellátást saját kombinált kondenzációs kazán végzi
• Másodlagos fűtésről és hűtésről multi klíma 3 beltéri egysége gondoskodik.
• Minőségi szaniterek - wc - bide -zuhanykabin.
• Beépített IKEA konyhabútor.
• Az épület szigetelt, vasbeton alapra épült, 38-as Porotherm tégla tartófalakkal, 10-es vakolt tégla válaszfalakkal.
• A homlokzat 10 cm-es grafit hőszigeteléssel, az aljzat 10 cm-es lépésálló szigeteléssel készült.
• Tető beton födémmel készült - födém 30 cm-es kőzetgyapot szigeteléssel rendelkezik.
• Szürke fém, több ponton záródó, biztonsági bejárati ajtó.
• Fa, több réteg üvegezésük, hő- és hangszigetelt nyílászárók, kő párkányokkal.

A kulcsrakész átadás végleges időpontja 2026.09.30.

Parkolni a lakópark előtti területen lehet igény szerint teremgarázs is bérelhető.

Kedvezményes hiteligénylés, CSOK, BABAVÁRÓ támogatás esetén, kezdeményezheti a kapcsolatfelvételt díjmentesen bankfüggetlen hitelszakértő munkatársunkkal.

Az ingatlan megtekintése előre egyeztetett időpontban lehetséges, akár hétvégén is.

Amennyiben felkeltette az érdeklődését, további kérdéseivel kapcsolatban várom a jelentkezését.

Lakás részletei

Ár: 141 250 000 Ft
Méret: 113 négyzetméter
Azonosító: 11554417
Irodai azonosító: 385567
Cím: Budakeszin kertkapcsolatos lakás!
Emelet: 1. emelet
Építőanyag: Tégla
Fűtés jellege: Cirkó
Ingatlan állapota:
Komfort fokozat: Dupla komfort
Építési év: Új építésű
Tulajdonviszony: Saját
Kilátás: kertre néző
Egész szobák: 3

Egyéb jellemzők

  • Erkély
  • Garázs
  • Lift
  • Pince
  • Tároló
  • Kocsibeálló

Térkép


Így keressen eladó lakást négy egyszerű lépésben. Csupán 2 perc, kötelezettségek nélkül!

Szűkítse a eladó lakások
listáját
Válassza ki a megfelelő
eladó lakást
Írjon a hirdetőnek
Várjon a visszahívásra