Eladó lakás Biatorbágy 157 000 000 Ft

Leírás

Modern, energiatakarékos otthon Biatorbágy szívében!

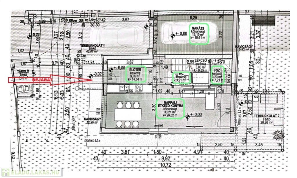
Eladó egy elegáns téglaépítésű lakás Biatorbágy központjában, ami inkább egy ikerház jellegű sorház – saját, elkerített, 182 m²-es kerttel és hátsó terasszal, ahol garantált a nyugalom és a privát tér.

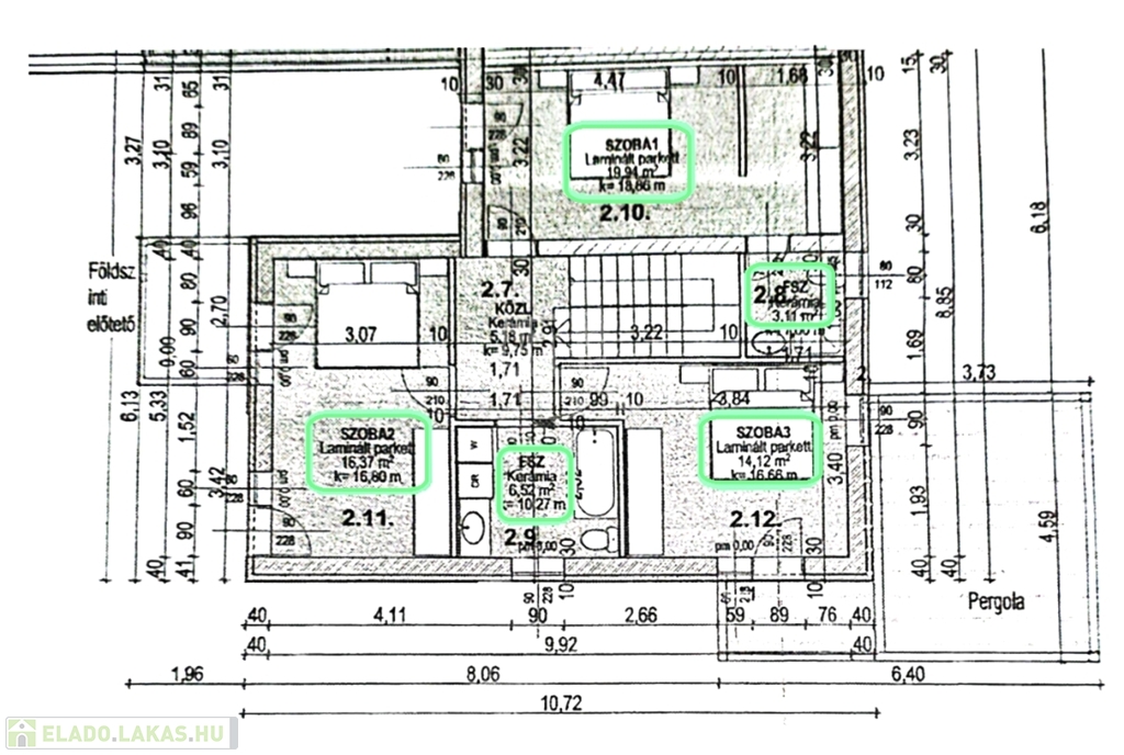
✅2 szint, 4 tágas szoba – ideális nagyobb családnak is
✅2 fürdőszoba + külön WC – kényelmes, praktikus elrendezés
✅Saját garázs 30 m2 + külön kocsibeálló
✅Hőszivattyús fűtés – környezetbarát, energiatakarékos megoldás
✅Kültséghatékony, alacsony a rezsi:15-20ezer Ft/hó
✅Gondozott, kizárólagos használatú kert gyönyörű kilátással
✅Biatorbágy központjában, minden fontos szolgáltatás pár perc sétára
✅Jogilag rendezett társasházban, közös költség nélkül – csak a saját házadra költesz!

Hétvégén és ünnepnapokon is felveszem a telefont, ha nem érsz el visszahívlak!

Ha eltévednél az állami támoggatások erdejében segítünk kibogozni. Itt is van lehetőség második lakásos CSOK+ felvételére!

Teljeskörű, díjmentes hitelügyintézést is vállalunk, így az álomotthonod megvásárlása a lehető legkönnyebb lesz!

Lakás részletei

Ár: 157 000 000 Ft
Méret: 118 négyzetméter
Azonosító: 11577794
Irodai azonosító: 389269
Cím: KÖZPONTBAN
Emelet: 1. emelet
Építőanyag: Tégla
Fűtés jellege: Hőszivattyú
Ingatlan állapota: Kitűnő
Komfort fokozat: Dupla komfort
Építési év: 1-5 éves
Tulajdonviszony: Saját
Kilátás: kertre néző
Egész szobák: 4

Egyéb jellemzők

  • Erkély
  • Garázs
  • Lift
  • Pince
  • Tároló

Térkép


Így keressen eladó lakást négy egyszerű lépésben. Csupán 2 perc, kötelezettségek nélkül!

Szűkítse a eladó lakások
listáját
Válassza ki a megfelelő
eladó lakást
Írjon a hirdetőnek
Várjon a visszahívásra