Eladó lakás Baracska 54 900 000 Ft

Leírás

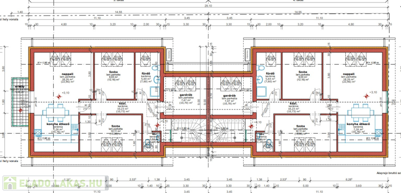
NÉGY LAKÁSOS TÁRSASHÁZ TERASZ ÉS KERTKAPCSOLATTAL!

Ha képes vagy meglátni,mit rejt ez a 4 lakásos társasház 2 földszinti kertkapcsolattal, 2 tetőtéri terasz kapcsolattal, kocsibeállóval.

Ha valami elindult benned ,ne fogd vissza magad.Bontsd ki a benned lévő erőt ,higgy magadban vágj bele!

A kivitelező törekedett arra,hogy magas minőségű,egyedi kivitelezésű ingatlant alkosson ezen a nem mindennapi környéken!!

A épület– csakúgy, mint a kivitelező számtalan, megtekinthető referencia háza esetében is – magas minőségi anyagok felhasználásával és magas műszaki tartalommal épül.


Fontos, hogy az ingatlanvásárlás hosszú távon is értékálló befektetés legyen!

Főbb műszaki jellemzők
- Beton sávalap
- Első födém: monolit
- Zárófödém: könnyűszerkezetes
- 10cm hanggátló + 2x5cm kőzetgyapot+ 2x2rtg gipszkarton
- Főfalak 30cm kerámia tégla
- 15cm hőszigetelés
- Födémszigetelés kőzetgyapot
- Nyílászárók 3rtg üvegezéssel ellátott belül fehér, többkamrás műanyagtokkal
- Bordázott szendvicspanel tetőfedés

A vételár a következőket foglalja magában:
- Burkolatok (hideg-meleg): 5000 Ft/nm
- Beltéri ajtók: 50.000 Ft/db kilinccsel
- Beépített tartályos WC +kézmosó+ Törölköző szárító
- Fűtés hőszivattyús
- Helyiségenként változó darabszámú, dugalj/gyenge áram kiállás, mennyezeti lámpatestek,
- Bekábelezett gyenge áram
- vízmérés önálló mérővel

Szép napot sikeres vásárlást kívánok!

Köszönöm hogy időt szánt a hirdetésemre!

Készséggel állok rendelkezésre további kérdésekkel kapcsolatban!

Lakás részletei

Ár: 54 900 000 Ft
Méret: 88 négyzetméter
Azonosító: 11539111
Emelet: Tetőtér
Építőanyag: Tégla
Ingatlan állapota: Kitűnő
Komfort fokozat: Összkomfort
Kilátás: udvari
Egész szobák: 4

Egyéb jellemzők

  • Erkély
  • Garázs
  • Lift
  • Kertkapcsolat
  • Tároló
  • Kocsibeálló

Így keressen eladó lakást négy egyszerű lépésben. Csupán 2 perc, kötelezettségek nélkül!

Szűkítse a eladó lakások
listáját
Válassza ki a megfelelő
eladó lakást
Írjon a hirdetőnek
Várjon a visszahívásra