Eladó lakás Balatonmáriafürdő 47 900 000 Ft

Leírás

Balatonmáriafürdőn közvetlenül a Balaton partján eladó egy teljesen átépített, három szintes épület földszinti lakása. A tágas, világos ingatlan ideális választás azok számára, akik a tó közelségét és a nyugodt környezetet keresik, de a fűnyírással nem szeretnének foglalkozni. A lakás elrendezése kényelmes, és a Balaton látványa mindennap élménnyé teszi az ott töltött időt.

Jellemzők:
- Földszinti elhelyezkedés
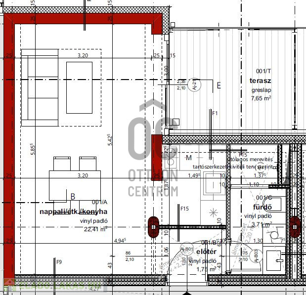
- 35 nm
- Terasz
- Közvetlen vízparti közelség
- Praktikus elrendezés
- Csendes, nyugodt környék
- Remek közlekedési lehetőségek
- Teljesen felszerelt, bútorozott
- Hűtő-fűtő klíma
- Kert kapcsolat

Ne hagyja ki ezt a ritka lehetőséget! Tökéletes választás nyaralónak, vagy állandó lakhatásra egyaránt. További információkért és megtekintésért keressen bizalommal!

Lakás részletei

Ár: 47 900 000 Ft
Méret: 35 négyzetméter
Azonosító: 11448704
Emelet: Földszint
Építőanyag: Tégla
Ingatlan állapota: Kitűnő
Kilátás: kertre néző
Egész szobák: 1

Egyéb jellemzők

  • Erkély
  • Garázs
  • Lift
  • Kertkapcsolat
  • Tároló
  • Kocsibeálló

Így keressen eladó lakást négy egyszerű lépésben. Csupán 2 perc, kötelezettségek nélkül!

Szűkítse a eladó lakások
listáját
Válassza ki a megfelelő
eladó lakást
Írjon a hirdetőnek
Várjon a visszahívásra