Eladó lakás Balatonföldvár 680 000 000 Ft

Leírás

Balatonföldvár:

Balatonföldvár fontos turisztikai célpont, nemcsak a magyarok, hanem más európai országok turistái számára is, természeti szépségei (például a löszhegy és a nagy virágos parkok), továbbá történelmi örökségei (például a kelta ösvény, a régi kúriák és villák) miatt számtalan szabadidős lehetőséget, valamint számos vízi sportot (vitorlázás, szörfözés, horgászat, evezés)

A Balatonföldvári magaspart a Balaton déli partjának egyik legimpozánsabb kilátópontja, amely meredeken emelkedik ki a tóból, lenyűgöző panorámát nyújtva a Tihanyi-félszigetre és az északi partra.

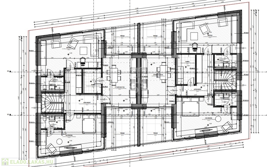
Prémium apartman házak:

B. 2. lakás.

Téglavázas szerkezet vasbeton födémmel.
12 cm vastag kőzeggyapot hőszigetelés a homlokzaton.
A+ energetikai besorolás.
Külső aluminium nyílászárók, háromrétegű üvegezéssel, aluminium profillal.
Motoros működtetésű zsalúzia árnyékolástechnika, távirányítós vezérléssel.
Szobákban: Riflex tölgyfa hajópadló.
Nappaliban és vizes helyiségekben: porcelán GRES kerámia.
Minden hálószobához saját fürdőszoba tartozik.
Előkészített kiállás konyhához a földszinten és az emeleten.
Nagyméretű, panorámás üvegfelületek.
Felületfűtés–felülethűtés hőszivattyús rendszerrel, padlófűtés, mennyezeti hűtés.
Lokális szellőzés a fürdőhelyiségekben.
Napelemes rendszer kiépítésének lehetősége (függőleges vezetékezés előkészítve).
Egy fedett gépkocsi beálló, egy kültéri parkoló.
Földszint: 89 nm.
Emelet: 89 nm.
Kert: 649 nm.

A további kérdésekkel és a megtekintéssel kapcsolatban kérem keressen a megadott mobil számon.

Lakás részletei

Ár: 680 000 000 Ft
Méret: 176 négyzetméter
Azonosító: 11594885
Irodai azonosító: 392038
Cím: Túra út. B.2.
Emelet: Földszint
Építőanyag: Tégla
Fűtés jellege: Hőszivattyú
Ingatlan állapota: Kitűnő
Építési év: Új építésű
Tulajdonviszony: Saját
Kilátás: panorámás
Egész szobák: 3

Egyéb jellemzők

  • Erkély
  • Garázs
  • Lift
  • Pince
  • Tároló

Térkép


Így keressen eladó lakást négy egyszerű lépésben. Csupán 2 perc, kötelezettségek nélkül!

Szűkítse a eladó lakások
listáját
Válassza ki a megfelelő
eladó lakást
Írjon a hirdetőnek
Várjon a visszahívásra