Eladó lakás Balatonföldvár 111 510 000 Ft

Leírás

Várható átadás: 2028. I. negyedév

KEDVEZŐ FIZETÉSI ÜTEMEZÉS!
A végleges adás-vételi szerződés aláírásakor a vételár 10%-át, a fennmaradó 90%-ot pedig a műszaki átadásra való felhíváskor esedékes megfizetnie.

Belle Vue lakópark a Balaton déli partján elhelyezkedő Balatonföldváron valósul meg a település délkeleti részén. A balatoni magas ponton fekvő telek csodálatos kilátást biztosít az épületegyüttesben található lakások nagy részének.

Az épületben 73 lakás kerül megépítésre, a garzonlakástól a nappali+3 hálószobásig.

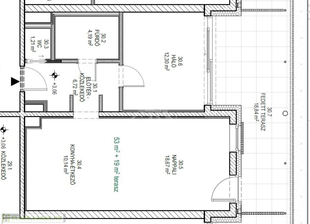
Ez a lakás nappali+1 hálós, 53nm alapterületű+ tartozik hozzá egy 19nm-es fedett terasz is.

A lakásokhoz mindegyik szárnyon burkolt kialakítású lapos tetős teraszok készülnek. A földszinti lakásokhoz a teraszok mellett magánhasználatú kertrészek is csatlakoznak, a harmadik emeleten pedig épületszárnyanként 2-2 lakáshoz egy saját használatú zöldtetős tetőterasz is kapcsolódik. Zöldmezős beruházás, de a városépítészeti koncepció szerint a területre egy többemeletes, társasházas építészeti környezet lesz jellemző, amibe a tervezett épület is illeszkedik.

Az épületegyüttes a földfelszín alatt, a pinceszinten (parkoló szinten) egy tömeget képez, mely a földfelszín felett három épületszárnnyá (lépcsőházzá) válik szét. Az épületszárnyak közötti sétányokon burkolt terek és kiemelt kazettákban elhelyezett intenzív zöldtetők kerülnek kialakításra. A Balaton felé néző közös használatú kertrészben pedig egy szintén közös használatú medence is helyet kap.

A három épületrész - megegyezően a közös pinceszint mellett - fsz+3emelet+tetőterasz magasak. A közös pinceszinten, mélygarázsban 78 db parkolóhely lesz kialakítva.

Felszíni beálló: 2.6MFt
Teremgarázs beállóhely: 6.4MFt

Lakás részletei

Ár: 111 510 000 Ft
Méret: 53 négyzetméter
Azonosító: 11479268
Irodai azonosító: 378315
Cím: Magaspart B107
Emelet: 1. emelet
Építőanyag: Tégla
Fűtés jellege: Hőszivattyú
Ingatlan állapota: Kitűnő
Komfort fokozat: Összkomfort
Építési év: Új építésű
Tulajdonviszony: Saját
Kilátás: kertre néző
Egész szobák: 2

Egyéb jellemzők

  • Erkély
  • Garázs
  • Lift
  • Pince
  • Tároló

Térkép


Így keressen eladó lakást négy egyszerű lépésben. Csupán 2 perc, kötelezettségek nélkül!

Szűkítse a eladó lakások
listáját
Válassza ki a megfelelő
eladó lakást
Írjon a hirdetőnek
Várjon a visszahívásra